Fidelity

St Martin’s Le Grande, London

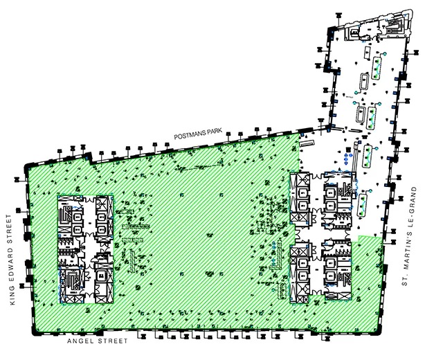
Fidelity Logison Floor Plan

Reducing distractions caused by unwanted noise in a mixed open plan working environment

International financial services firm Fidelity moved into a brand new building at the start of 2014. High on their agenda was speech privacy; their aim being to reduce distractions to all staff working in the open plan areas.

Fidelity’s 100% open plan working culture means that one floor accommodates all of the different business groups in a relatively condensed area.

The working environments within these business groups vary, with each requiring different acoustic conditions for staff to perform their roles efficiently.

For example, those dealing with investors on the phone create more noise than research and analytical staff, who require quiet conditions that aid concentration. HR and payroll staff need absolute privacy, which isn’t necessary for other areas of the business.

To manage this complex, 23,000 sq ft open plan environment we chose the market leading LogiSon Sound Masking system. Its advanced technology and multi-functional capabilities meant LogiSon was the only solution that could successfully manage noise and privacy levels to the expectations of the client.

Sound Level Test Fidelity

Sound level tests: open plan areas

These example test results measure sound travelling across an open plan space.

  • For both tests, a person was positioned at the same desk.

  • Sound pressure measurements were taken at a distance of 12 metres from the desk.

  • For the first half of each test, there was no speech.

  • For the second half, the person at the desk spoke with a ‘telephone speaking’ voice.